Amsterdam Town House
  • 3.950.000€

Description

Discover this impressive spacious mansion in the beloved Van Breestraat, one of the most beautiful streets in Amsterdam, right next to the iconic Concertgebouw and within walking distance of upmarket shopping streets. This stylish family home, with a generous living area of 333 m², is spread over five floors and offers all the space and comfort you could wish for.

With space in abundance with no less than six spacious bedrooms, three luxury bathrooms, a private sauna, steam shower and wine cellar, nothing is lacking here. Enjoy the beautiful terraces and a 6-metre-deep backyard, where you can relax in the afternoon and evening sun.

High-quality materials were used during a large-scale renovation in 2002. Think gorgeous oak floors, sleek walls and stylish recessed spotlights on each floor. The open layout ensures maximum use of space.

LAYOUT
Upon entering through the marble hall, you are welcomed into the spacious kitchen diner with all top-design appliances, including a 7-burner gas cooker, American fridge and a central sink island. At the rear, there is enough space for a large dining table and doors open onto a covered terrace and the sunny garden. At the front, you can cosy up in the lounge. The stately staircase at the rear of the house, is accessible from a small hallway and extends to the top floor. Next to the staircase is a separate toilet on each floor.

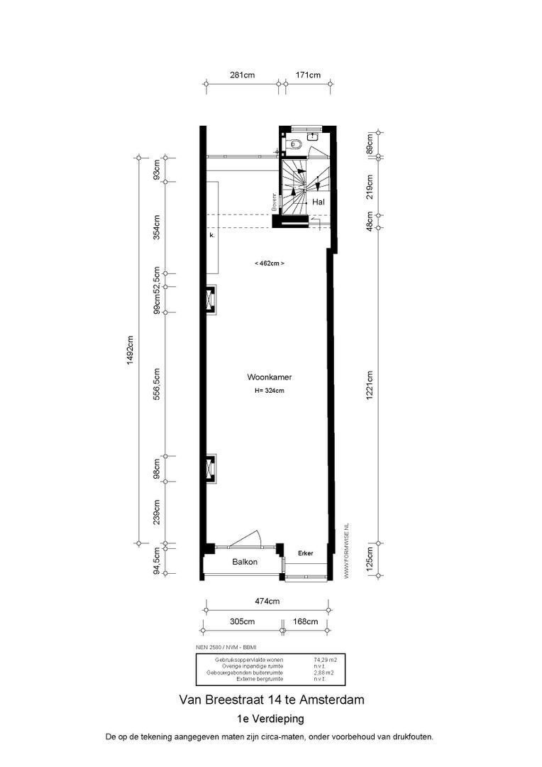
FIRST FLOOR
Hallway and separate toilet. Spacious and bright, 12 metres deep, living room with two authentic fireplaces, charming bay window and access to the front balcony. This room is characterised by its pleasant light and high ceilings of over 3 metres.

SECOND FLOOR
The landing gives access to two generous bedrooms. The master bedroom at the rear has French doors to the deep terrace, a built-in cupboard, beautiful fireplace, ornamental ceilings and the bathroom en-suite. This modern bathroom is equipped with large walk-in shower, double washbasin and toilet. Second spacious bedroom at the front of the property with French balcony.

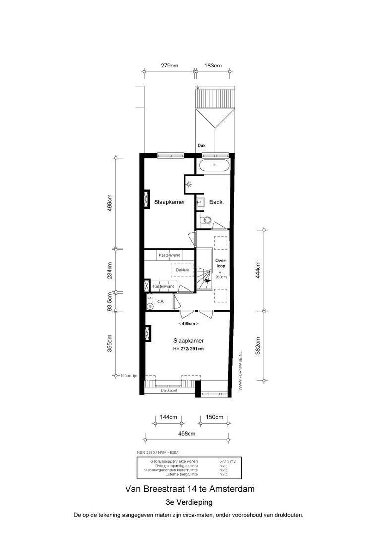
THIRD FLOOR
Landing with skylights, spacious bedroom at the front, good-sized bedroom at the rear. Between the two bedrooms is the dressing area, a generous walk-in closet with skylight giving access to the roof. The bathroom is situated at the rear and equipped with a bathtub, walk-in shower, washbasin and toilet.

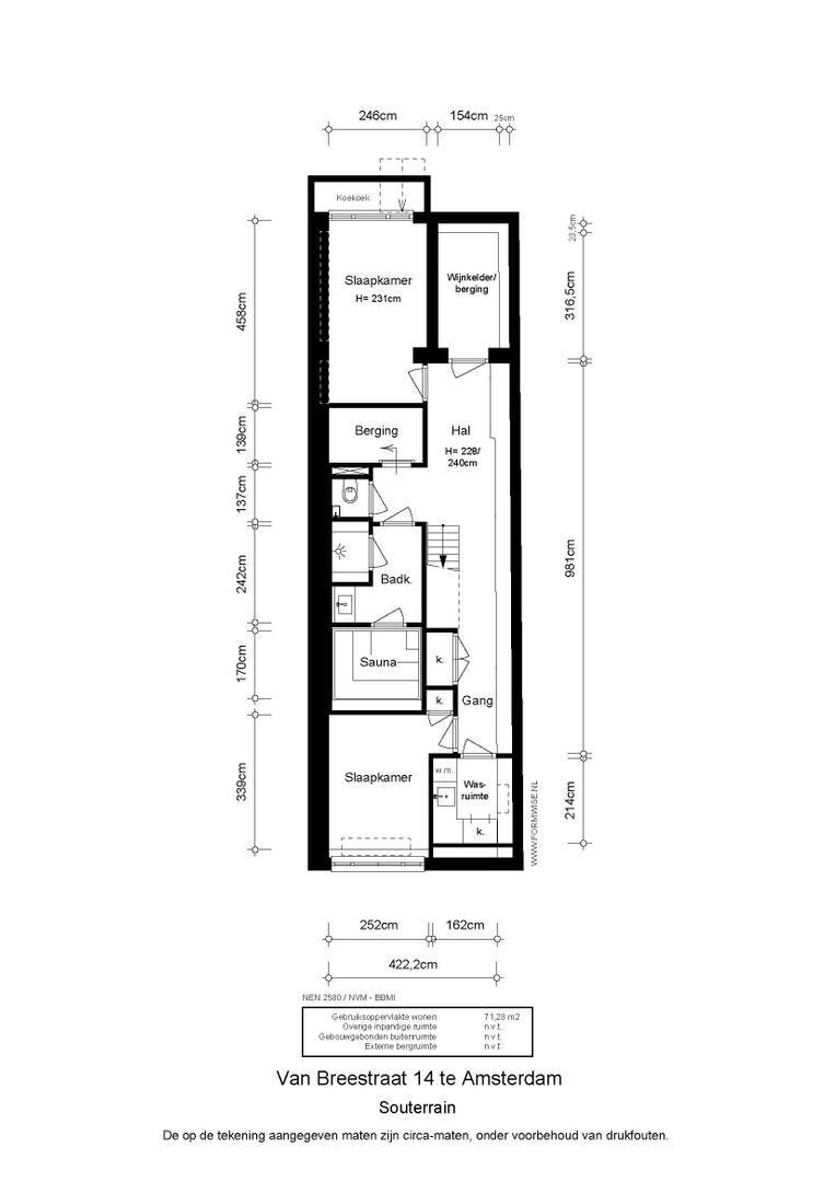
SOUTH TERRAIN
Here you will find two more bedrooms, one of which has a koekoek on the garden side. Centrally located is the bathroom with spacious walk-in (steam) shower and washbasin. From the bathroom there is access to the sauna. Separate toilet. Convenient storage space and built-in cupboards. Spacious wine cellar at the rear and a separate laundry room at the front. The basement has a good standing height of about 2.40 metres. The tub was renewed in 2003.

This exceptionally charming family home in one of Amsterdam’s most desirable neighbourhoods is the ideal combination of luxury, comfort and space.

DETAILS
– Living area of 333 m² (measured NEN2580);
– Municipal monument;
– Own land;
– Completely renovated in 2003 with use of high quality materials;
– New basement from 2003.

Details

  • Price 3.950.000€
  • Living Area 333 sqm
  • Lot Size 118 sqm
  • Bedrooms 6
  • Bathrooms 3
  • Year Built 1899
  • Property Type House
  • Status For Sale

Address

  • City: Amsterdam
  • State/county: North Holland
  • Area: Apollobuurt
  • Country: Netherlands

Schedule a Tour

Your information

Contact Information

View Listings
Partner Agency – Netherlands

Enquire About This Property

Similar Listings

This document does not form part of any offer or contract. All measurements, areas, and distances are approximate. The information and plans contained herein are believed to be correct, however, their accuracy is not guaranteed. The photographs show only certain parts of the property at the time they were taken. This offer is subject to change of price or other conditions, without prior notice.