Fabulous property nestled in the Crete Senesi
- 3.500.000€
- 3.500.000€
Description
Wonderful property in the Crete Senesi, with a main farmhouse of 760 square meters, 12 bedrooms and 10 bathrooms, swimming pool, annex, and 1.6 hectares of parkland.
This magnificent property of 1020 square meters in total, located in the countryside of Monteroni d’Arbia, consists of a stone farmhouse with a total area of 760 square meters, annexes of 260 square meters, and a beautiful park with a 1.6-hectare swimming pool.
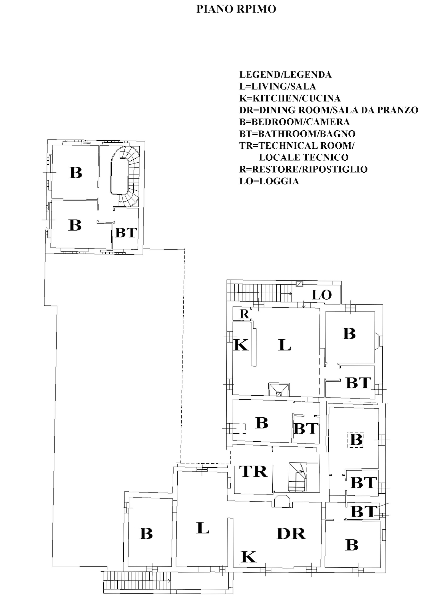
The stone farmhouse is on two levels and is divided into 6 apartments that can easily be combined into a single unit.
One apartment, currently used by the owners, is located in the two-floors tower, 3 apartments are on the ground floor, and the remaining 2 apartments are on the first floor.
In total, there are 12 bedrooms and 10 bathrooms, and each apartment has its own living area and kitchen.
Each unit has been designed to ensure maximum comfort, with elegant finishes and a layout that provides brightness and allows you to enjoy the beautiful panorama offered by the Crete Senesi.
Next to the property there is an annex, once used as a shelter for horses and now convertible into a pool house with large windows.
The well-kept 1.6-hectare park features a swimming pool with a unique view, as well as about twenty young olive trees.
STATE AND FINISHES
The farmhouse underwent a skilful renovation in 2020, using high-quality materials and maintaining the characteristic Tuscan style with terracotta floors and exposed beams.
SERVICES AND UTILITIES
The property is connected to all utilities.
Water is supplied by the public aqueduct, and there are also two collection wells for irrigation.
Heating is provided by LPG, and there are split systems for both cooling and heating.
USES AND POTENTIAL
Due to its strategic location, the farmhouse is an excellent investment for those who wish to continue the tourist rental business.
It is also perfect for conversion into a luxurious private residence.
Property Documents
Details
-
Price 3.500.000€
-
Living Area 1020 sqm sqm
-
Lot Size 1.6 ha ha
-
Bedrooms 12
-
Bathrooms 10
-
Property Type Country House
-
Status For Sale
Additional details
-
Heating LPG
-
Water supply Public aqueduct and
-
Irrigation Two collection wells
-
Cooling and heating Split systems
Address
Open on Google Maps-
Address: Monteroni d'Arbia, Siena, Italy
-
City: Monteroni d'Arbia
-
State/county: Tuscany
-
Zip/Postal Code: 53014
-
Country: Italy

































