Prestigious Apartment In The Heart Of Corvara
- 3.800.000€
- 3.800.000€
Description
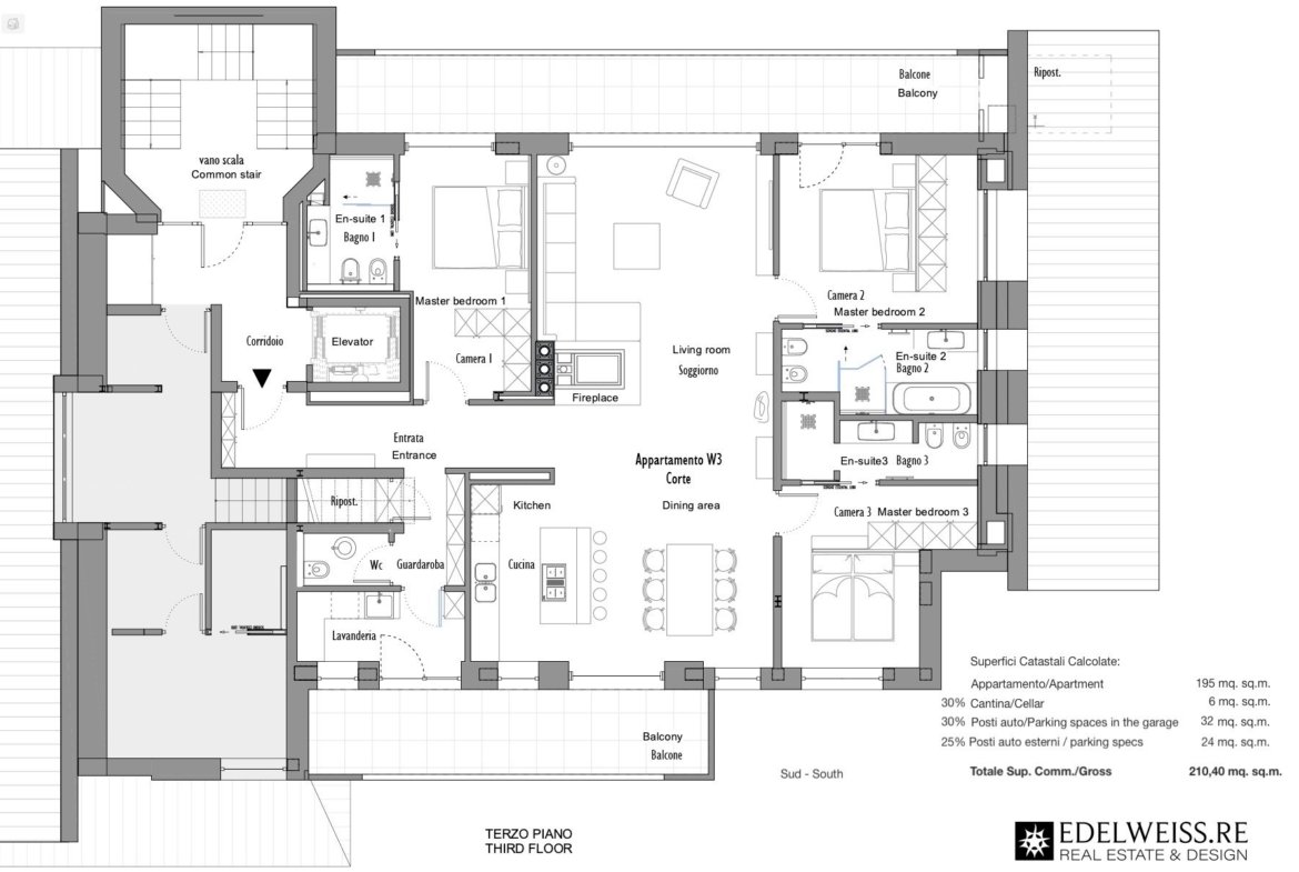
We are delighted to present this new and prestigious three-bedroom apartment on the third floor of an elegant chalet consisting of four independent units in the heart of Corvara in Badia, just a few steps from the Col Alt cable car.
The upscale chalet underwent a comprehensive renovation, including demolition, reconstruction, and extension, while maintaining adjacency to a pre-existing building. Consequently, it has been designated with a Casaclima B classification, despite boasting features, finishes, and materials typical of Category A-awarded buildings, such as triple glazing, insulation, heating system, etc.
The apartment consists of:
– An entrance hall
– A guest bathroom
– A storage room
– A laundry room
– A wide open-plan living area with a fireplace, open kitchen, and dining area, providing the perfect balance between socialization and relaxation.
– Three spacious bedrooms with en-suite bathrooms and walk-in closets
– Two ample balconies with panoramic views of Corvara and the majestic Mt. Sassongher
– An elevator for easy access to all floors
You’ll also have access to a cellar, two garage spaces, and two uncovered parking spaces.
There is the possibility of buying the property completely furnished, as displayed in the renderings. In this case, the price will be determined based on the client’s choices.
Details
-
Property ID AG1310-02
-
Price 3.800.000€
-
Living Area 210 sqm
-
Bedrooms 3
-
Bathrooms 4
-
Year Built 2024
-
Property Type Apartment
-
Status For Sale
Address
-
City: Corvara
-
State/county: Trentino-South Tyrol
-
Country: Italy
Schedule a Tour
Contact Information
View ListingsSimilar Listings
Magnificent Villa With Pool And Vineyard Views, Just Minutes From The Sea
- 1.500.000€





























