Luxury villa in Monte San Savino
- 3.200.000€
- 3.200.000€
Description
PROPERTY OVERVIEW AND LOCATION
In a private and exclusive location between Siena, Arezzo, and Florence, we propose to you for sale this unmissable luxury Villa with swimming pool and 5.5 ha of land. The location enjoys excellent privacy while remaining convenient with respect to services and [enjoys] wonderful views over the surrounding olive groves and the town.
INTERIOR SPACES
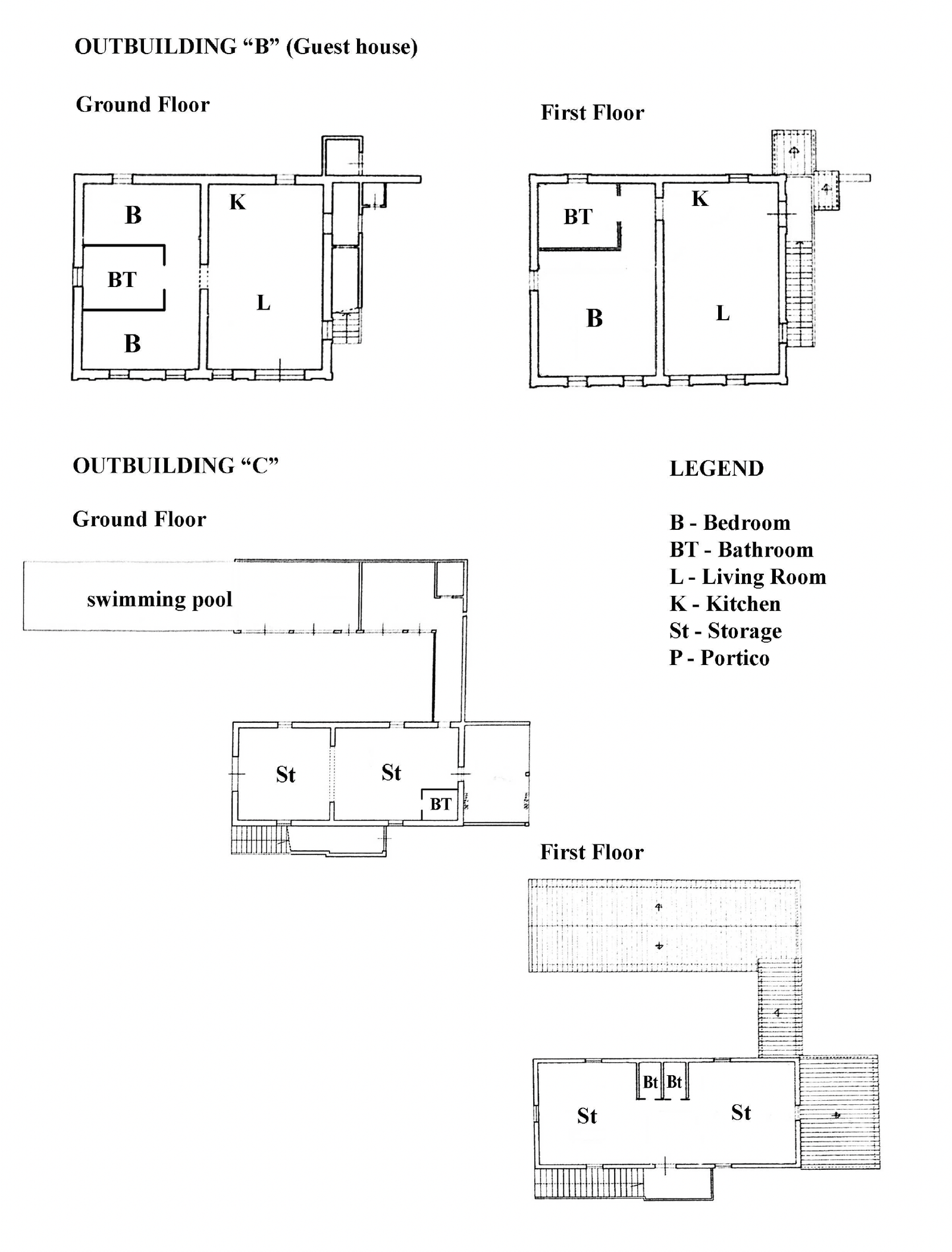
At a short distance from the beautiful city of Arezzo, we find for sale this ancient villa finely renovated. The villa of about 400 sqm is arranged on 4 levels and presents itself currently as completely renovated. In its interior at the basement floor we find the cellar, while a large living area [is] on the ground floor and the sleeping area [is] distributed on the first and second floors; in total in its interior there are 12 bedrooms and 8 bathrooms. Part of the property is also the dependance of 200 sqm, arranged on 2 levels, divided into two apartments of which: one formed by kitchen-living room, 2 bedrooms and 1 bathroom, while the other by kitchen-living room, bedroom and bathroom. The property also includes an annex of 200 sqm on two levels, in brick, restored and currently used as a warehouse. The whole complex was the object of a meticulous restoration intervention finished in 2014.
LAND AND EXTERIORS
The property is located in a dream location 1 km from the nearest inhabited center and from all services. The property includes 5.5 ha of land which includes vineyard and olive grove and the beautiful and lush park that surrounds the villa and where the beautiful swimming pool is also located.
UTILITIES
The house is equipped with all utilities including also a 20kw photovoltaic system.
CURRENT MANAGEMENT POTENTIAL USE
The property is ideal to be used as a prestigious private villa or to be put to income as an accommodation facility. RESTYLING PROJECTS in the agency with the possibility of customization based on any necessity.
Property Documents
Details
-
Price 3.200.000€
-
Living Area 1200 sqm
-
Lot Size 5.5 ha
-
Bedrooms 15
-
Bathrooms 13
-
Property Type Villa
-
Status For Sale
Address
Open on Google Maps-
Address: Monte San Savino, Arezzo, Italy
-
City: Monte San Savino
-
State/county: Tuscany
-
Zip/Postal Code: 52048
-
Country: Italy
Schedule a Tour
Contact Information
View ListingsSimilar Listings
Organic Winery Estate In Montepulciano 50 Hec Of Premium Vineyards And Olive Groves
- 15.000.000€



















